Cambium

Cambium

London

Lendlease

Share this:

The Brief

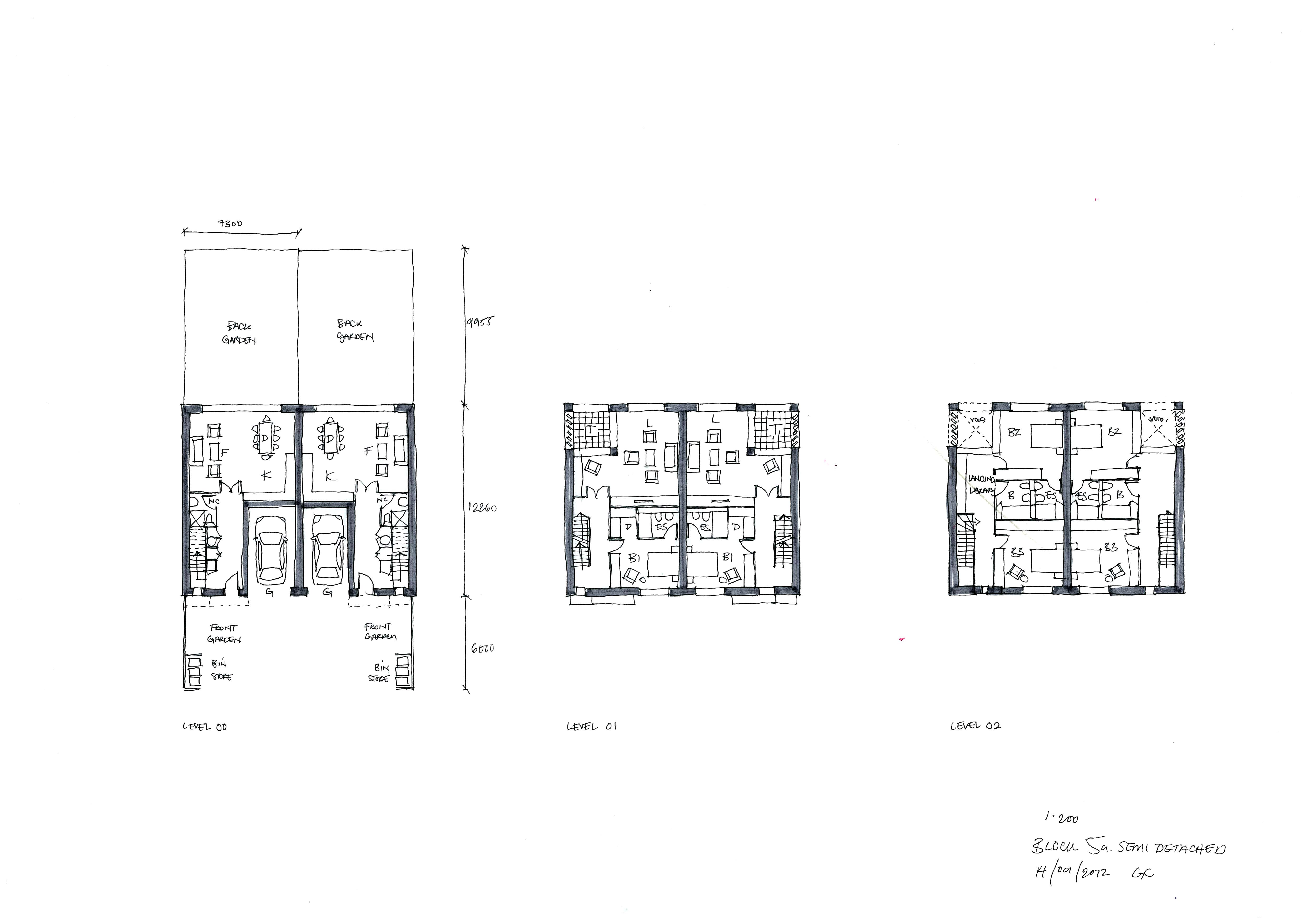
The residential proposals at Cambium provide 110 new homes and form part of a wider strategy to create a new school on a nearby site. We explored how a new community of townhouses and apartments could be created, while respecting the surrounding townscape and context.

Concept

The site is nestled within a residential context, with an existing church located adjacent. Our concept has created a new public realm of streets and spaces around which new homes can be placed. The homes are Mews-type or Townhouse-type according to their situation. An apartment building provides a focal point at the entrance.

Features

Our street and space strategy has allowed more homes to be created than had originally been anticipated. This arrangement has also allowed a historic oak tree planted by Capability Brown to be retained as the central feature of the new open space. A programme to achieve a sustainable residential community has also been developed with the client team.

You're looking for an exceptional team.
We're looking for exceptional projects.

Let's start a conversation.

Enquire